Principale » Terratetto » Immobile Dettagli
  

Rif. 3378

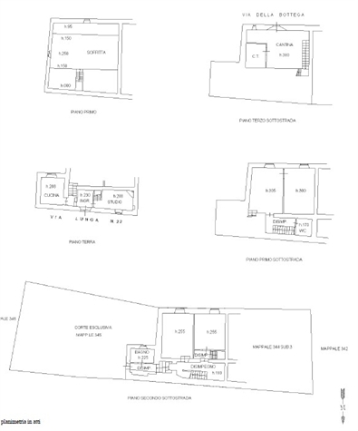
TERRATETTO IN VENDITA A PESCIA

180 mq. | 4 camere | 2 bagni

49 000,00 €

Tipologia annuncio 
 Vendita
Camere 
 4
Bagni 
 2
Garage 
 
Vani 
 6
Giardino 
 Si
Metratura 
 180 mq.
Svizzera Pesciatina, Loc. Pontito terratetto disposto su quattro livelli oltre soffitta composto da: ingresso, studio, cucina con camino al piano terra, al piano primo due camere con bagno, al piano secondo sottostrada due camere, disimpegno e bagno, oltre a cantina con centrale terminca. Il tutto corredato da resede esclusivo e terrazza con pergolato che si affaccia sulla valle con vista sulle colline. Riscaldamento a gasolio. L'immobile necessita di alcuni interventi di manutenzione e rimodernamento. Immobile in classe G ipe 460,5 Kwh/mq annui
 
 
 
 
Richiesto
Invio
* campi obbligatori

Inoltrando questa richiesta di informazioni l'Utente presta il suo consenso alla privacy. Per l'informativa completa cliccare su questo link: Informativa completa