Principale » Villetta » Immobile Dettagli
  

Rif. 3376

VILLETTA IN VENDITA A PONTE BUGGIANESE

146 mq. | 3 camere | 2 bagni

330 000,00 €

Tipologia annuncio 
 Vendita
Camere 
 3
Bagni 
 2
Garage 
 
Vani 
 5
Giardino 
 Si
Metratura 
 146 mq.
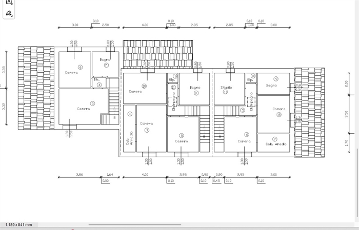
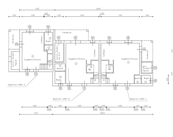
Prima campagna di Ponte Buggianese, in zona tranquilla villetta angolare in trifamiliare di nuova costruzione ( UNITA' C) disposta su due livelli mq 146 circa così composta: al piano terra ingresso soggiorno con angolo cottura, ripostiglio, bagno, locale tecnico, al piano superiore tre camere di cui una con cabina armadio, ripostiglio e altro bagno. Giardino su due lati mq 450 circa con loggiato e resede lastricato per posti auto. Riscaldamento a pavimento, pannelli fotovoltaici classe energetica prevista in A . Possibilità di scelta delle finiture consegna chiavi in mano entro fine 2026.
Richiesto
Invio
* campi obbligatori

Inoltrando questa richiesta di informazioni l'Utente presta il suo consenso alla privacy. Per l'informativa completa cliccare su questo link: Informativa completa