Principale » Fondo » Immobile Dettagli
  

Rif. 3384

FONDO IN VENDITA A BUGGIANO

50 mq. | 0 camere | 0 bagni

55 000,00 €

Tipologia annuncio 
 Vendita
Camere 
 0
Bagni 
 0
Garage 
 
Vani 
 3
Giardino 
 No
Metratura 
 50 mq.
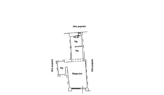
In zona di passaggio fondo ad uso commerciale mq 35 circa con servizio igienico, buone condizioni, attualmente affittato ad attività con contratto anni 6+6 ad € 400 mensili. Attiguo altro fondo ad uso magazzino di circa mq 25. Immobile in classe G ipe 175 klwh/mq annui
Richiesto
Invio
* campi obbligatori

Inoltrando questa richiesta di informazioni l'Utente presta il suo consenso alla privacy. Per l'informativa completa cliccare su questo link: Informativa completa