Principale » Villetta » Immobile Dettagli
  

Rif. 3374

VILLETTA IN VENDITA A PONTE BUGGIANESE

112 mq. | 2 camere | 2 bagni

330 000,00 €

Tipologia annuncio 
 Vendita
Camere 
 2
Bagni 
 2
Garage 
 
Vani 
 3
Giardino 
 Si
Metratura 
 112 mq.
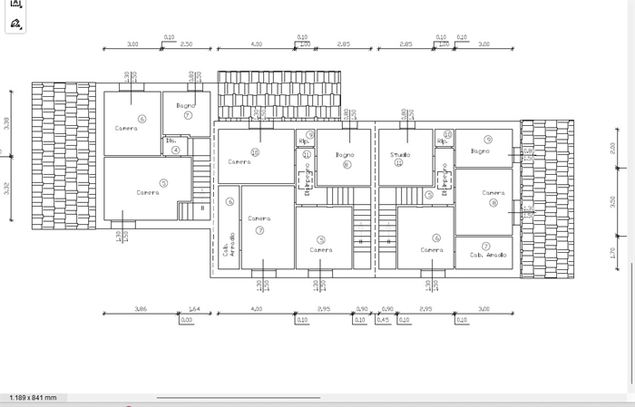
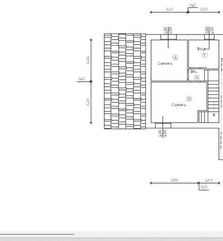
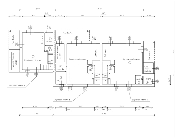
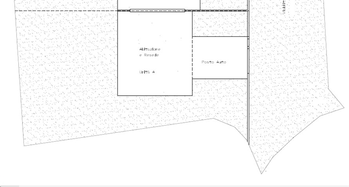
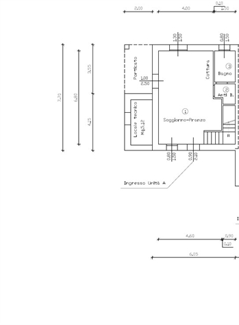
Prima campagna di Ponte Buggianese, in zona tranquilla villetta in trifamiliare angolare ( UNITA' A) di nuova costruzione disposta su due livelli mq 112 circa così composta: al piano terra ingresso soggiorno con angolo cottura, bagno, locale tecnico, al piano superiore due camere e altro bagno. Giardino su tre lati mq 650 circa con loggiato e resede lastricato per posti auto. Riscaldamento a pavimento, pannelli fotovoltaici classe energetica prevista in A . Possibilità di scelta delle finiture consegna chiavi in mano entro fine 2026.
Richiesto
Invio
* campi obbligatori

Inoltrando questa richiesta di informazioni l'Utente presta il suo consenso alla privacy. Per l'informativa completa cliccare su questo link: Informativa completa